Unique Collection Dette produkt forhandles i fysiske køkken- og hvidevarebutikker
KULFRI MOTOR
Autoaspiration sensorteknologi Når det er vigtigt at kunne fokusere på madlavning, kan du aktivere Autoaspiration-funktionen. Emhættens sugestyrke justeres automatisk afhængig af antallet samt effekten af de kogezoner, som er i brug.
Eftersug - 15 min En del af EICO´s produkter har eftersug, eller timerfunktion som startes efter madlavningen og slukker automatisk efter en given tid
Vis alle Vis alle
Varenr.: 5796
Aero 80 N A
Kogeplade med integreret emhætte og høj ydelse
14.995,00 kr.
- Fokuspunkter
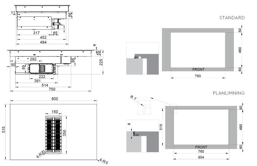
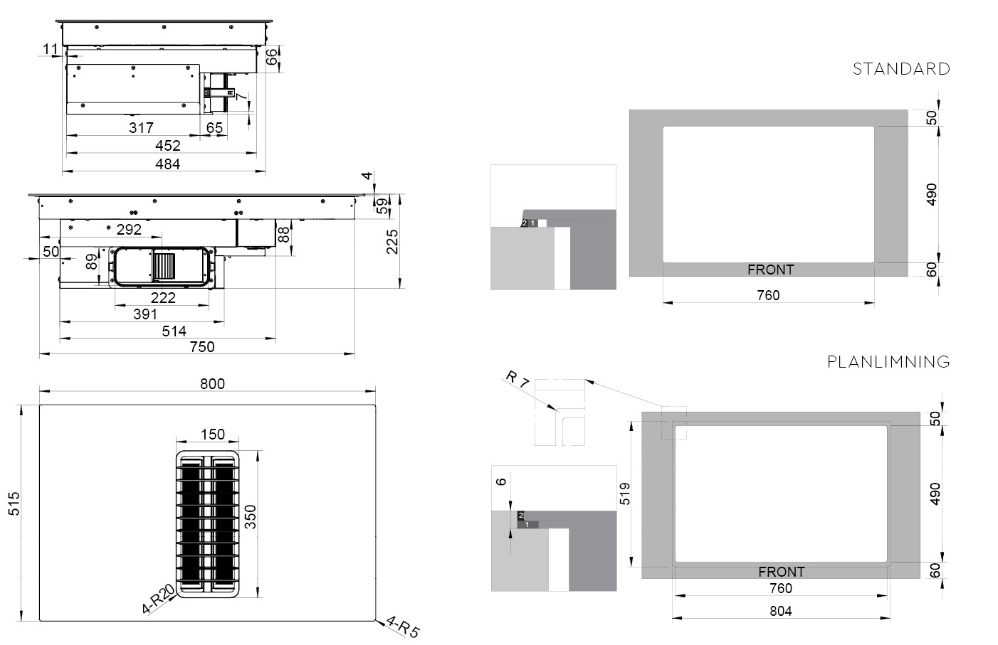
- Produkt (BxDxH) 800 x 515 x 255 mm
- Betjening
- Slidertouch control
- Slidertouch control + sensor
- Antal niveauer 9 trin
- Intensiv trin 1 intensiv trin
- Luftstrøm min-max 227 - 448 m3/t
- Luftstrøm (intensiv) 621 m3/t
- Lydeffekt 36 - 65 dB(A)
- Betjening (kogeplade) Slidertouch control
- Effekttrin 10 trin
-
- Ydeevne op til hele 9,5 m/s
- Kulfri motor
- 2 x brofunktion
- Udformet til at bevare ekstra skabsplads
- Ekstrem lydsvag og energiklasse A+
- Kulfri motor => mere støjsvag og længere levetid




















